2026 WH Care Holding GmbH
KONTAKT:
WH Care Rietberg GmbH
Lebens- und Gesundheitszentrum
Haus Mea Vita
Stennerlandstraße 18
33397 Rietberg
Tel.: 05244 - 90 833 0
Betreutes Wohnen in Rietberg ist unser
Service Wohnen
Unabhängig
und
selbstbestimmt
in
Ihren
eigenen
vier
Wän
-
den!
Die
Wohnungsgrößen
variieren
zwischen
rund
40
und
rund
55
Quadratmetern.
Allen
Einheiten
gemein
ist,
dass
sie
barriere
-
frei
zugänglich
sind.
Darüber
hinaus
verfügen
sie
über
einen
kombinierten
Wohn-
und
Essbereich,
in
den
auch
eine
offene
Küchenzeile
integriert
ist,
ein
separates
Schlafzimmer,
einen
Abstellraum,
ein
seniorengerechtes
Bad
sowie
teilweise
über
einen Balkon.
Angrenzend
an
das
Büro
der
Service
Wohnen-Leitung
gibt
es
einen
kleinen
Gemeinschaftsraum,
ebenfalls
mit
integrierter
Küche.
Hier
können
Sie
sich
mit
Ihren
NachbarInnen
zum
Austausch
bei
einer
Tasse
Kaffee
treffen,
genauso
kleine
pri
-
vate Feiern ausrichten oder Ihre Enkelkinder empfangen.
Die
beiden
großzügigen
Dachterrassen
erfüllen
denselben
Zweck,
beginnend
im
zeitigen
Frühling
bis
in
den
späten
Herbst hinein.
Auch
das
Foyer
des
Hauses
Mea
Vita
mit
großzügigem
Ein
-
gangs-/Restaurant-Bereich,
Wintergarten
und
Sonnenterrasse
lädt
Sie
und
Ihre
Gäste
zum
Verweilen
ein.
Um
die
Reinigung
und
die
Pflege
der
Gemeinschaftsflächen
kümmern
wir
uns,
genauso um den entsprechenden Winterdienst.
Sie haben Fragen, oder wünschen eine unverbindliche Besichtigung?
Wir freuen uns auf Ihren Anruf:
05244 - 90 833 100
verwaltung-sw@wh-rietberg.de
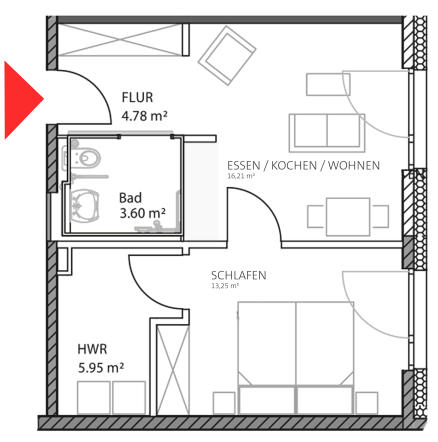
Beispiel: Wohnung 8, 3. OG
Ein-Raum-Apartment
Wohnfläche: 46,21 m²
incl. Gemeinschaftsflächen: 51,66 m²
Beispiel: Wohnung 17, 3. OG
Zwei-Raum-Apartment
Wohnfläche: 43,79 m²
incl. Gemeinschaftsflächen: 52,43 m²
Uns ist wichtig, Ihnen all unsere Leistungen und Angebote transparent, in Anlehnung an die DIN Norm 77800, darzustellen.
Wir
möchten
Sie
nicht
mit
Kosten
überraschen,
die
Sie
im
Vorfeld
Ihres
Einzuges
nicht
erkennen
konnten.
Grundlage
des
Service
Wohnens ist ein Mietvertrag, den Sie für die Wohnung abschließen. Dabei variiert der Mietpreis je nach Größe der Wohnung
(40 m² – 55 m²). Zu der reinen Wohnungsgröße kommt ein Anteil an der Gemeinschaftsfläche hinzu, die für alle Mieter nutzbar ist.
Mit
dem
Mietvertrag
ist
eine
Grundleistungspauschale
gekoppelt,
welche
ein
Mindestprogramm
an
Sicherheit
und
Fürsorge
gewähr
-
leistet.
Lebens- und
Gesundheitszentrum